Tata Ariana Project

Plot Nos. – 87/1263 & 87/1264, Zone No. – 20, Mouza - Shankarpur, Aigenia, Bhubaneswar, Odisha – 751029

Overview of Tata Ariana Project

Presenting Ariana, Phase 3, the latest addition with Towers 5, 6, 7 & 8. These spacious abodes enjoy forest views and thoughtful amenities to unwind. Offering 2, 3, Duplexes & Penthouses apartments in Bhubaneswar, to live a luxurious lifestyle, it is the perfect place to create infinite memories with your family

  1. Location – Plot Nos. – 87/1263 & 87/1264, Zone No. – 20, Mouza – Shankarpur, Aigenia, Bhubaneswar, Odisha – 751029
  2. Total Land Area – 12 Acres
  3. Elevation in (Phase-3) – 4 Towers of B+S+21, 426 Units
  4. Unit Configuration – 2bhk 
  5. Unit Sizes & price – 2  bhk – 808 sqft carpet – 99 Lakhs* + GST
  6. Possession – March 2027

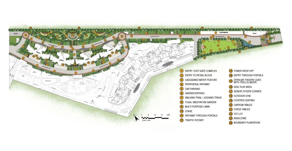
Site & Floor Plan of Tata Ariana Project

Master Plan

Floor Plan

Amenities of Tata Ariana Project

Address of Tata Ariana Project

Map View

Residential Building FAQs

1. What types of apartments are available?
We offer 2bhk apartments with modern layouts and amenities.
2. What are the payment plans?
Flexible payment plans are available including down payment, installments, and home loan options.
3. Is the project RERA registered?
Yes, the project is fully RERA registered ensuring transparency and legal compliance.
4. What amenities are included?
Amenities include clubhouse, gym, landscaped gardens, children's play area, and 24/7 security.
5. When is the possession date?
The expected possession date will be Possession – March 2027 from the start of construction.

Get The Best Quote

Scroll to Top